
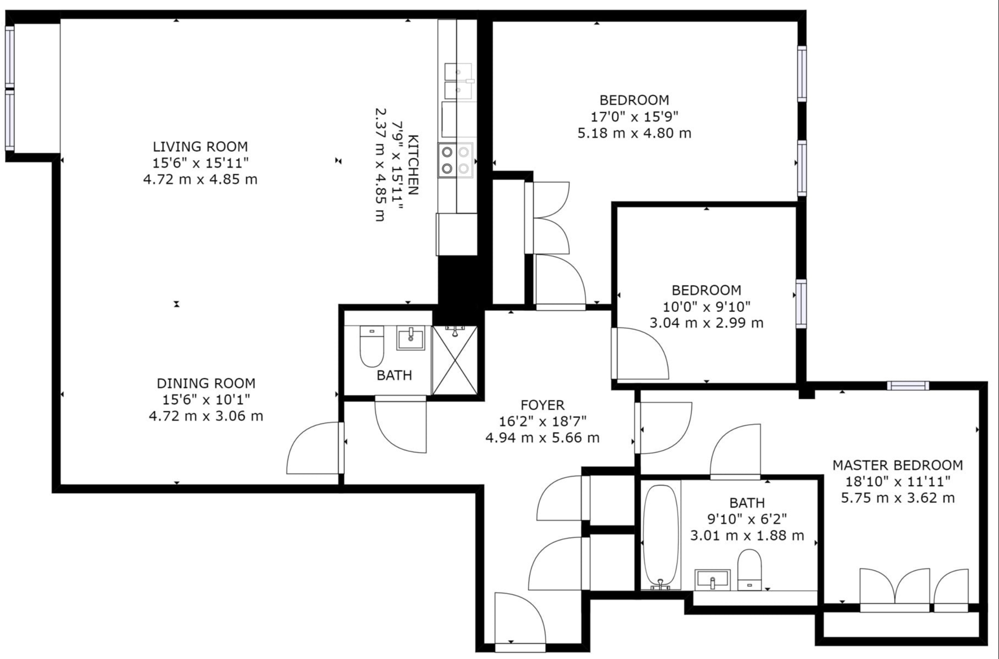
3 Bed 2 Bath Apartment
1341 sq ft
24hr Concierge
1st floor
Residents Gym
Communal Gardens
EPC Rating B
Council Tax Band G, Westminster
Security Deposit £8,600
This spacious three-bedroom, two-bathroom apartment is located on the first floor of the prestigious Merchant Square development in Paddington, W2. Designed for modern city living, the property features a bright open-plan reception room with floor-to-ceiling windows, a sleek fitted kitchen with integrated appliances and ample dining space, creating the perfect setting for both everyday living and entertaining.
The principal bedroom includes an en-suite bathroom and built-in storage, while two further bedrooms are well proportioned and complemented by a stylish family bathroom. Finished to a high standard throughout, the apartment also benefits from comfort cooling and excellent storage.
Residents of Merchant Square enjoy a 24-hour concierge service, lift access and beautifully landscaped communal spaces, all within a vibrant waterside development. The location is superb, just moments from Paddington Station for national rail, Heathrow Express and Elizabeth Line services, as well as Edgware Road Underground for convenient connections across London. Hyde Park and the West End are also within easy reach, offering world-class shopping, dining and leisure options.
![]() |
||
![]() |
![]() |
![]() |
![]() |
![]() |
![]() |
![]() |
IMPORTANT NOTICE FROM DRE
Descriptions of the property are subjective and are used in good faith as an opinion and NOT as a statement of fact. Please make further specific enquires to ensure that our descriptions are likely to match any expectations you may have of the property. We have not tested any services, systems or appliances at this property. We strongly recommend that all the information we provide be verified by you on inspection, and by your Surveyor and Conveyancer.